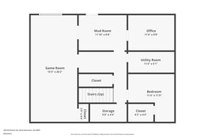
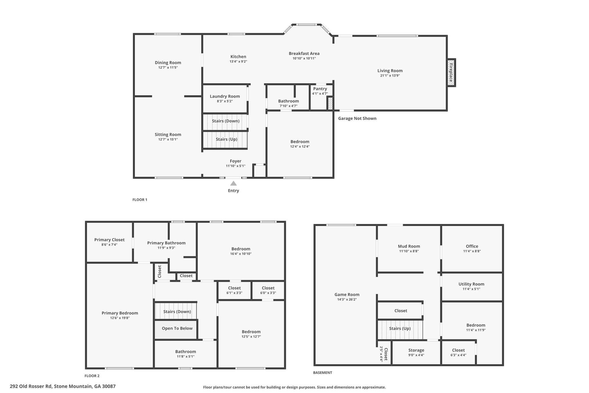
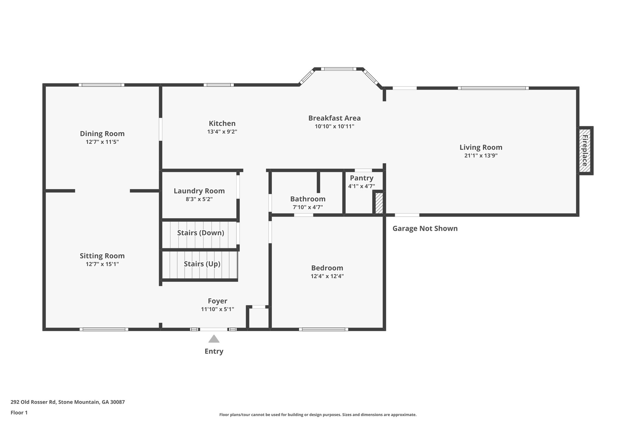
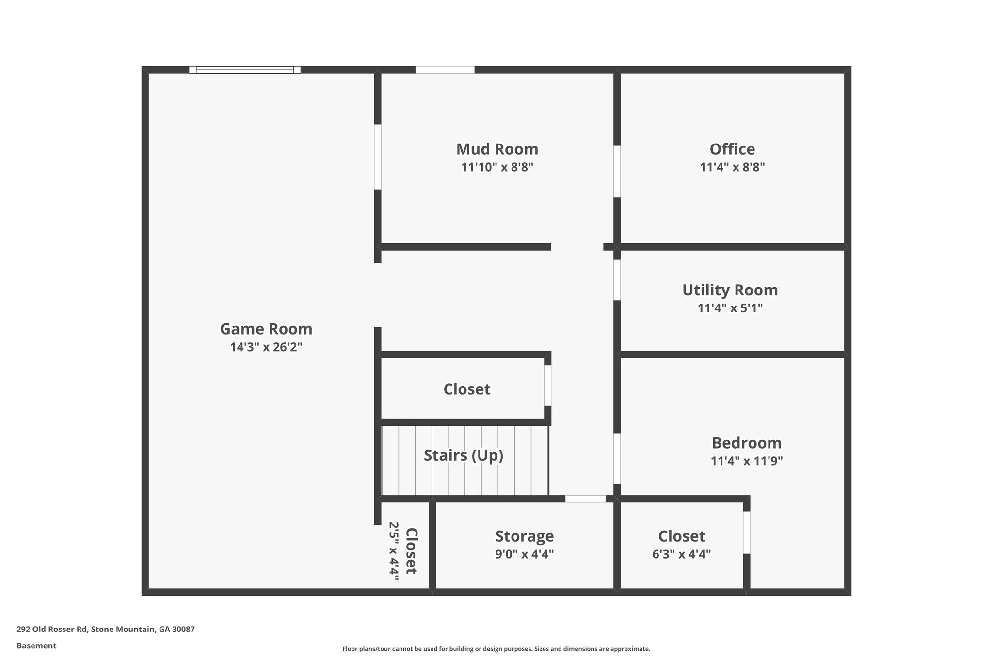
292 Old Rosser Rd, Stone Mountain, GA 30087
Toggle Navigation
Floor Plans
3D Tour
Map
292 Old Rosser Rd
Stone Mountain, GA 30087
Scroll to Content
Floor Plans
Slideshow
Photo Grid
Hide
Previous
Next
3D Tour