1105 Burlington Ct, McDonough, GA 30253
Toggle Navigation
Images
Videos
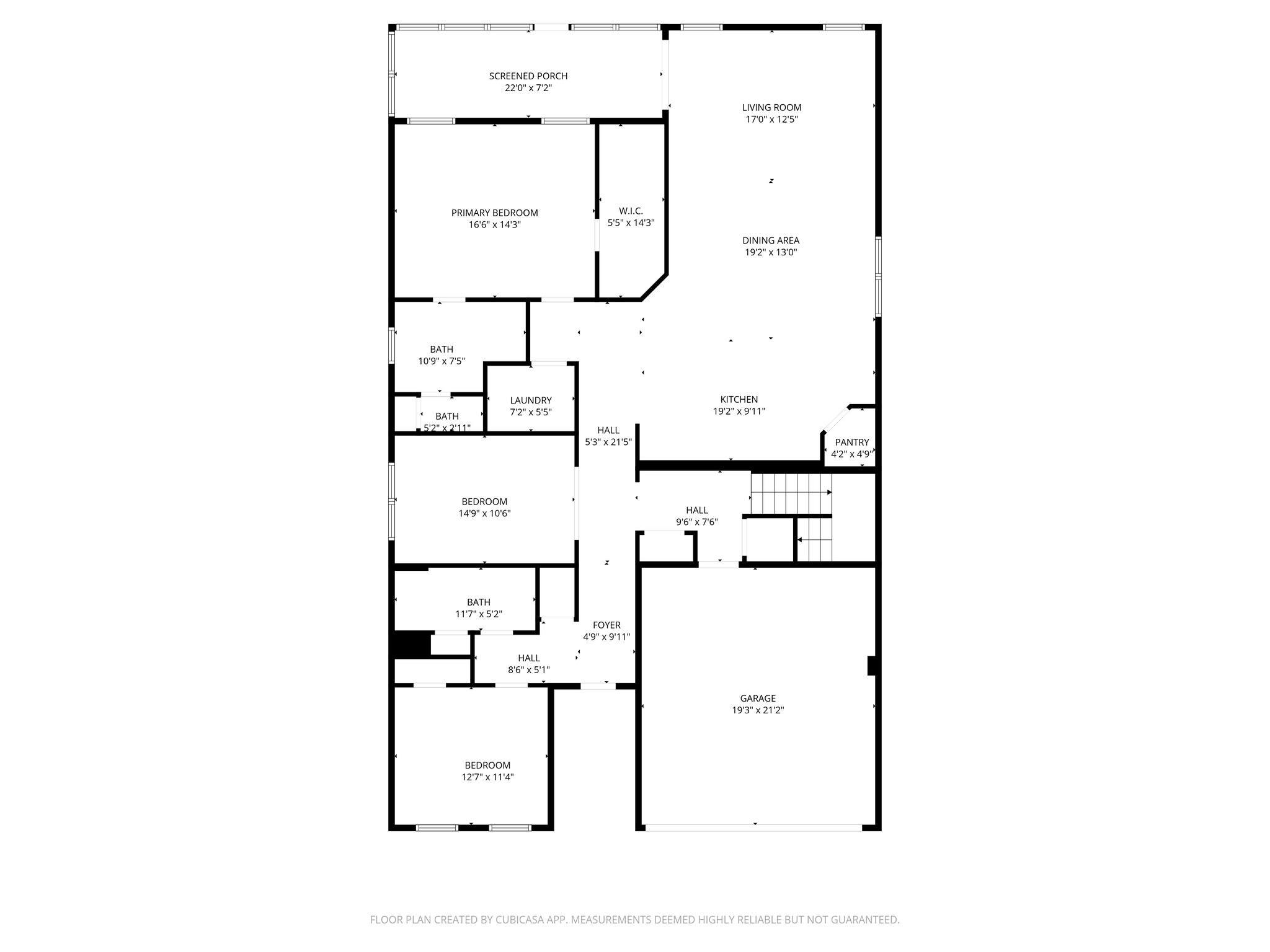
Floor Plans
Map
1105 Burlington Ct
McDonough, GA 30253
Scroll to Content
Images
Slideshow
Photo Grid
Hide
Previous
Next
Show more
Videos
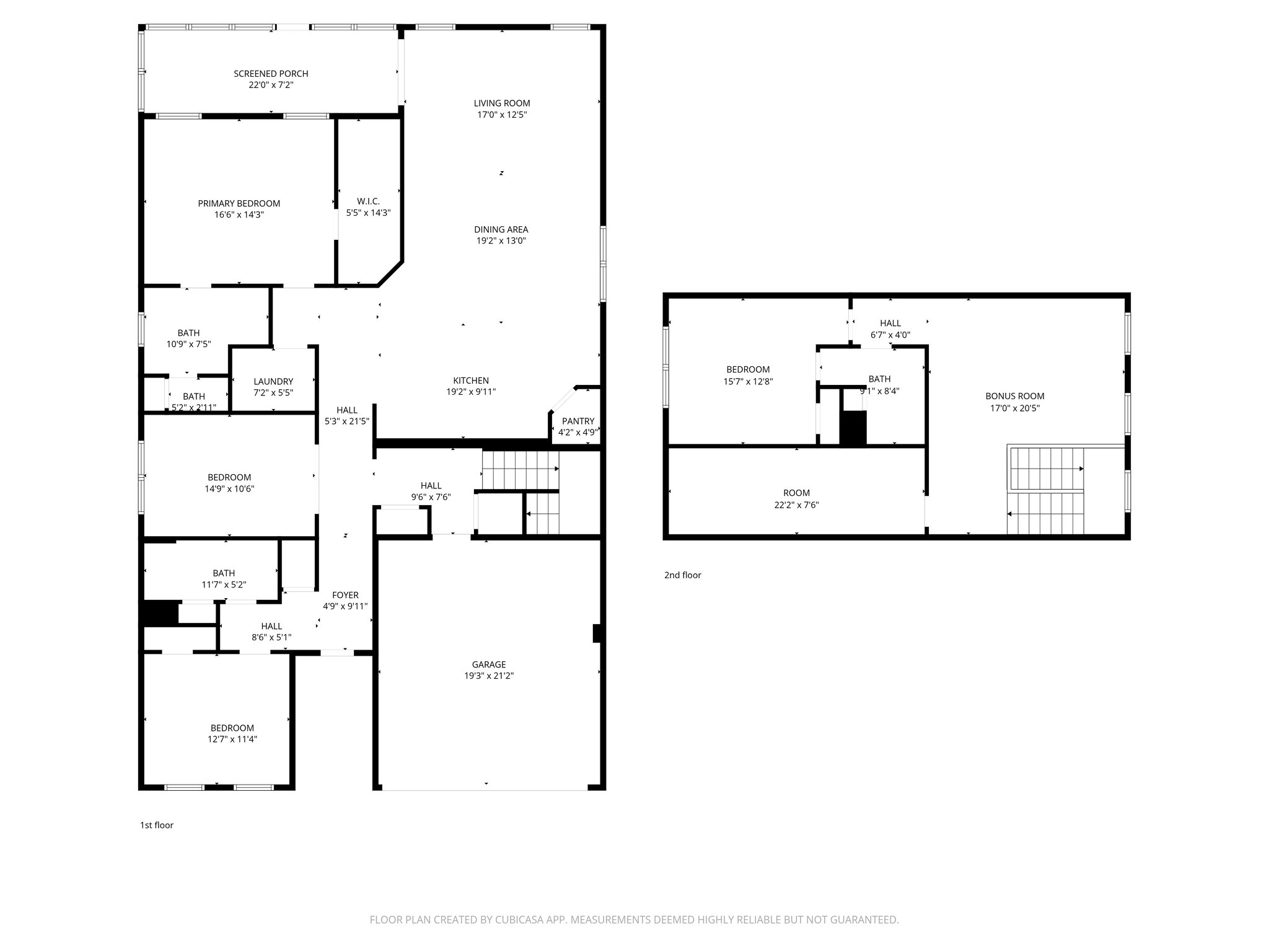
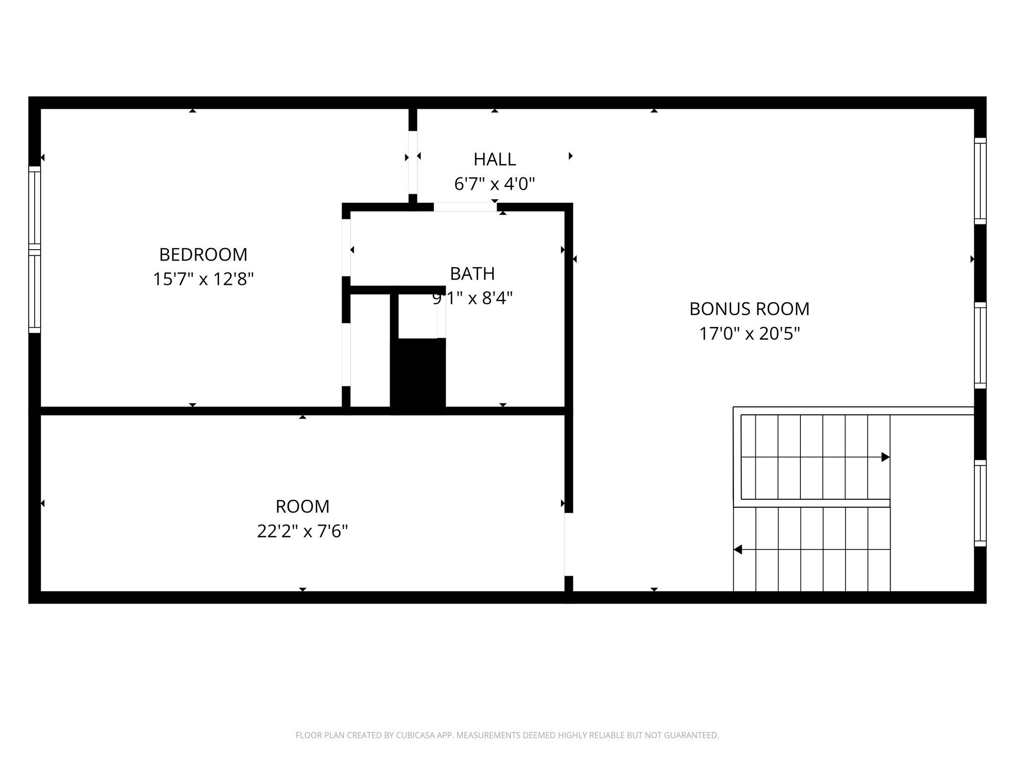
Floor Plans
Slideshow
Photo Grid
Hide
Previous
Next